Next >

Yantai Bajiao Bay Exhibition Center

> Project Type: Culture

> Location: Yantai, Shandong

> Supervisor: Agus Rusli, Hong Tian

> Year: 2019

> Role: Intern

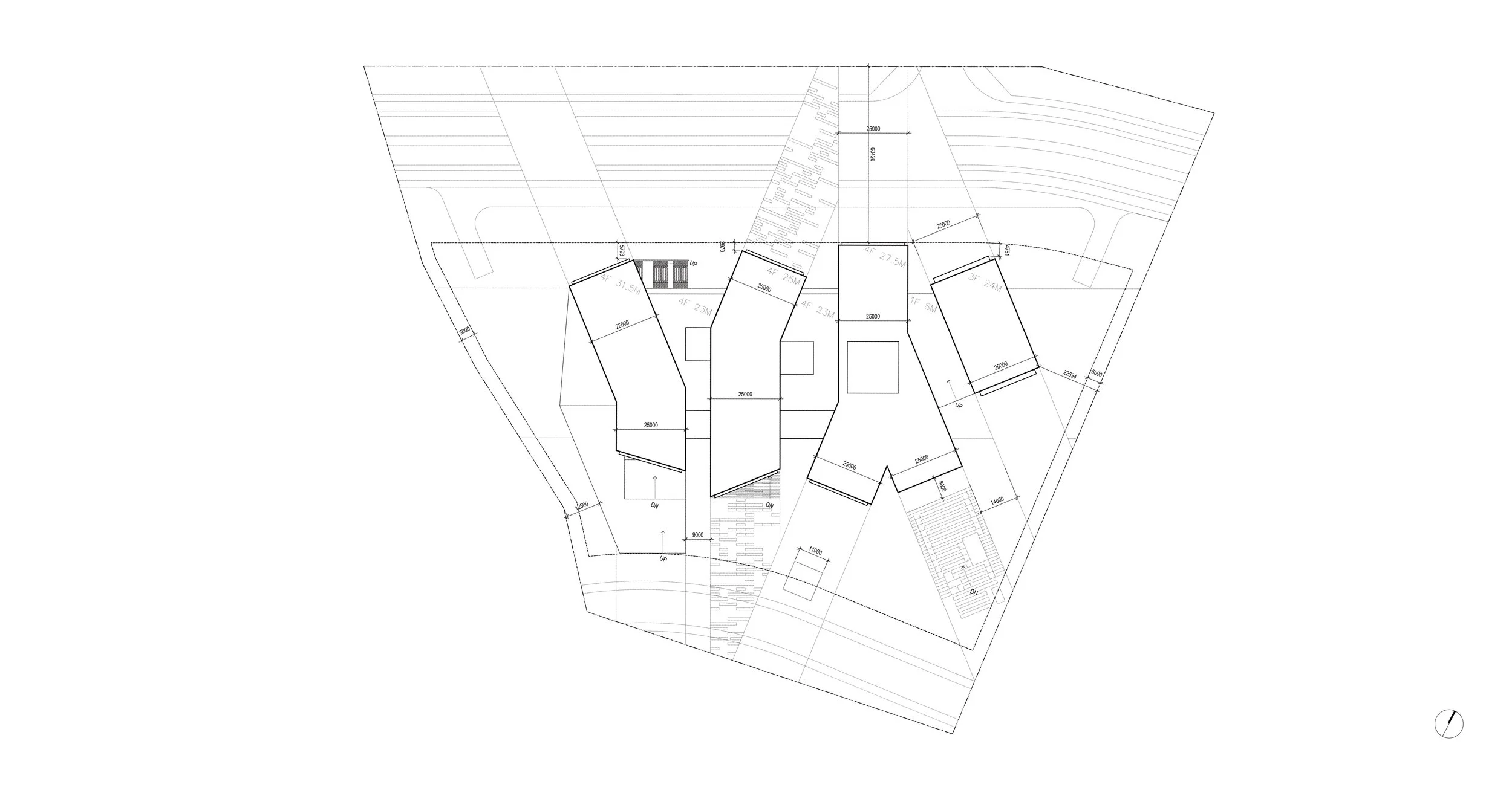
The 50,208m2 plot (24,969m2 buildable) was an island by land reclamation at the termination of the central axis of planning Bajiao Bay Newtown in Yantai, the location of Mount Penglai in Mythology. The cultural amenity in 25,000m2 GFA, as a complex of Exhibition, Offices, Museum and Conference, deliberately relied on the dialogue with history by developing the idea of concept forms. Its unique location as the intersection of multiple axes in the urban-planning view derived the dominant axis-oriented pattern to the design, whereas the marine-cultural context nourished its adventurous form metaphors of the Giant Fish in myth, the telescope visioning the future or barques ready for adventure. My task is to design the main atrium and prepare a series of diagrams.

Home
< Last